1. Art Métaux
  2. Escaliers
  3. Fabrication escalier design debillardé limon central - Pose à Marseille
Retour

Fabrication escalier design debillardé limon central - Pose à Marseille

Art Métaux vous présente un nouvel escalier sur mesure, fabriqué dans nos ateliers à Saint Mitre les remparts.

Cet escalier a été conçu pour s'adapter à l'intérieur particulier de cette maison perchée sur le Roucas. En effet, les murs sont bâtis sur la roche et l'escalier devait passer au-dessus.

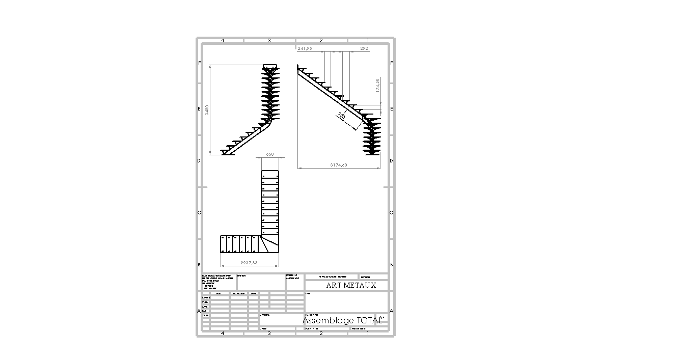
Le client a choisi un limon central débillardé en tube rectangulaire acier de 100x150. Nous avons fabriqué cet escalier dans notre atelier de Saint-mitre les Remparts.

Nous fabriquons nos escaliers pour qu'ils puissent être remontés mécaniquement en kit. Après fabrication dans nos ateliers, nous redémontons les éléments, et nous les remontons sur chantier.

L'avantage de cette conception est que vous pouvez monter vous-même votre escalier chez vous.

Cet ouvrage a été monté en acier brut, car notre client a choisi de le vernir lui-même après la pose.

Les marches et contremarches sont en tôle d'acier ép 5mm.

 

Commandez votre escalier chez nous:

Art Métaux se déplace chez vous pour prendre les côtes précises et vous établit un plan détaillé avant fabrication.

Vous pouvez voir dans les images les plans de conception que nous vous présentons avant la fabrication. 

 

Partager :
Nous écrire
Les champs indiqués par un astérisque (*) sont obligatoires
Nous vous garantissons
Fabrication sur-mesure
Fabrication sur-mesure
Artisan Ferronnier
Artisan Ferronnier
Pose & installation
Pose & installation
Devis gratuit
Devis gratuit